物件情報

豊玉中3丁目建築条件付売地

徒歩約5分☆『豊玉小学校』 徒歩 約2分☆『豊玉中学校』徒歩約7分☆東部ストア徒歩約1分☆建物詳細は、お問い合わせ下さい

物件No.0

最寄駅 住所/構造 築年 種別
西武池袋線「練馬駅」徒歩10分
東京メトロ大江戸線「練馬駅」徒歩10分
東京都練馬区豊玉中3丁目
( ) 総戸数:
条件付売地


豊玉中3丁目建築条件付売地
豊玉中3丁目建築条件付売地図面
豊玉中3丁目建築条件付売地写真 豊玉中3丁目建築条件付売地写真
豊玉中3丁目建築条件付売地写真 豊玉中3丁目建築条件付売地写真



価格 (坪単価:)
管理費等
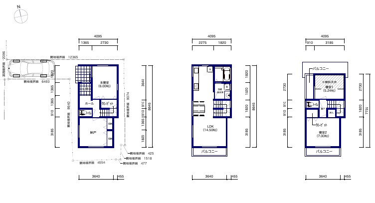
間取り 参考プラン 3SLDK 専有面積 70.31㎡(公簿)
間取り詳細 1F 洋室 約6帖:納戸 約6帖 
2F LDK 約14.5帖
3F 洋室 約7帖:洋室5.2帖
向き
現況 更地 引渡時期 即日
施工会社 管理会社
管理方式 取引態様/契約形態 売主
土地権利 所有権 建築条件
地目 宅地 接道状況 西側4m
建ぺい率 60% 容積率 200%
用途地域 第1種低層住居専用地域 都市計画 市街化区域
国土法届出要否
建物設備等
設備
駐車場概要
条件等 建築条件付売地
備考



最新物件情報の一覧

  • 中野新橋駅徒歩2分☆北東角地☆
    • 中野新橋駅徒歩2分☆北東角地☆
    • 延床面積:161.77㎡ 
  • 売約済
    秦野市今泉 売地NO3
    ☆建築条件無し売地☆間口約16mの開放感
    • 秦野市今泉 売地NO3
  • 売約済
    ライオンズプラザ歌舞伎町11階
    ☆JR『新宿』駅徒歩7分☆
    ☆東
    • ライオンズプラザ歌舞伎町11階
    • 1ROOM
  • 売約済
    レオパード中野
    角地☆タイル張り☆3階☆2駅利用可能
    • レオパード中野
    • 1K
    • 14㎡
  • 売約済
    レオパード中野
    レオパード中野外観タイル張り☆角地
    • レオパード中野
    • 1R
    • 14㎡
  • 売約済
    番衆町ダイヤモンドマンション
    番衆町ダイヤモンドマンション☆フルリノベ
    • 番衆町ダイヤモンドマンション
    • 1LDK
    • 33.4㎡

page top

copyright© 2026 CREATE HOMES Co., Ltd. ALL RIGHTS RESERVED.